お知らせ情報
2021.03.02
西スタンド1階ナイター専用スペースの設置について


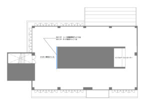
小松島競輪場ではこれまでGⅠ・GⅡ・GⅢナイター競輪の前売発売を行っておりましたが、令和3年4月からお客様により多くの開催を楽しんでいただけるようFⅠ・FⅡナイター競輪につきましても前売発売を行います。それに伴いまして、西スタンド1階のポンスターランド側エリアに「ナイター専用スペース」を設け、レース映像専用テレビを2台、オッズ専用テレビを1台設置いたします。 ナイター前売発売の運用につきましては、GⅠ・GⅡ・GⅢナイターは16時40分ごろまで、FⅠ・FⅡナイターは昼開催終了まで前売発売を予定しております。